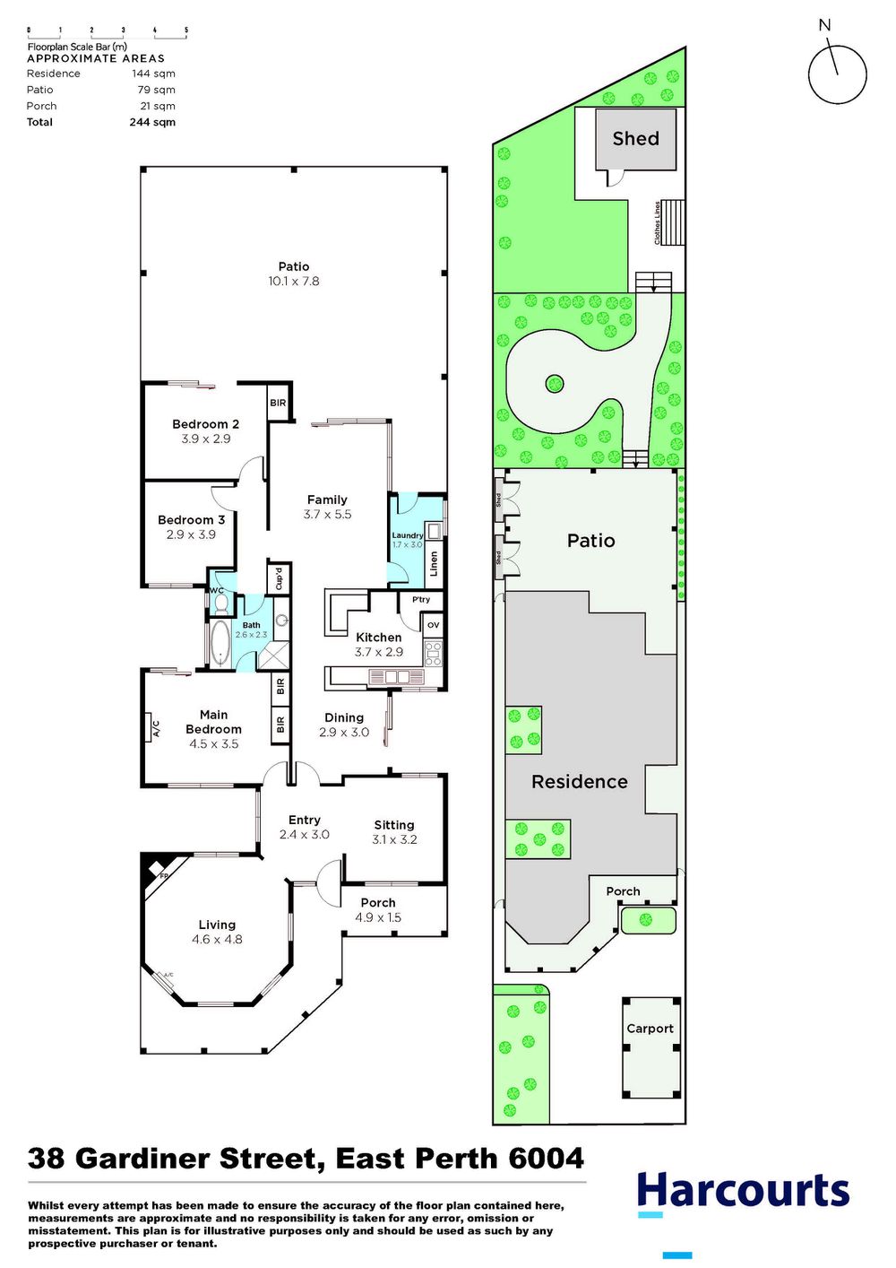
Nestled close to where the action is but far enough removed from all of the hustle and bustle that life near the city throws at you, this delightful 3 bedroom 1 bathroom home defines low-maintenance character living and enjoys the bonus of right-of-way access from the rear, secured by double backyard gates for peace of mind.
Welcoming you inside is a commodious formal front lounge room with high ceilings, an open fireplace, split-system air-conditioning and a gas bayonet for further winter heating. Only inches away lies a versatile formal-dining room - or study space - that can be whatever you want it to be and has its own gas bayonet and a high angled ceiling.
The casual-meals area opens out on to a small courtyard for sitting and quiet contemplation, whilst soaring high raked ceilings grace the adjacent central kitchen, as well as a huge family room with stylish pendant light fittings. The kitchen itself plays host to a stainless-steel range hood a gas cooktop, separate oven, a storage pantry and more.
A massive outdoor alfresco-entertaining area is made up of two pitched side-by-side patios that will comfortably cater for any occasion. The sunken backyard is somewhat of a "blank canvas" and leaves more than enough room for a swimming pool later down the track - depending on what your future plans may be.
Back inside, the third bedroom flows out to the patio spaces and comprises of a ceiling fan, built-in double wardrobes and low-maintenance timber-look flooring. The second bedroom has a fan and matching floors too, as does the spacious master suite - also featuring a split-system air-conditioning unit, two sets of built-in side-by-side double robes and semi-ensuite access into a practical fully-tiled bathroom with a shower and separate bathtub.
Stroll down to the stunning Banks Reserve alongside our picturesque Swan River for a family picnic or barbecue next to the playground, with a waterside walking trail leading you all the way down to Mardalup Park at Claisebrook Cove - and eventually our world-class Optus Stadium along the Burswood peninsula. Also only walking distance away are the likes of the Mount Lawley and East Perth Train Stations, as well as medical facilities, bus stops, shopping, entertainment hotspots and everything that the heart of the Perth CBD has to offer. Location, location, location!
Other features include, but are not limited to:
• Internal character brickwork
• Circular stained-glass feature window to the front lounge
• Alfresco access from both the family room and laundry
• Generous laundry storage
• Skirting boards
• Two external storage sheds, under the alfresco
• Rear garden shed
• Lovely easy-care gardens and roses
• Single carport
• Extra adjacent parking space
• Large 722sqm (approx.) block with future potential
• Minutes away from Graham Farmer Freeway, the Crown Towers and casino complex at Burswood and so much more




















