A rare opportunity to acquire one of Western Australia's most distinguished private estates.
Majestic, storied, and set upon 20 acres of fertile land, this remarkable two-storey Manor presents a once-in-a-generation opportunity for the discerning buyer. Whether envisioned as a treasured family seat, an exclusive private retreat, or an intimate boutique hospitality venture, this property delivers an extraordinary canvas upon which to realise an equally extraordinary
vision.
Arrive in Style
Your approach alone sets the tone. A private driveway of approximately 500 metres, flanked on either side by nearly 100 mature eucalyptus trees, reminiscent of the grand avenues of Kings Park, announces your arrival long before the Manor itself comes into view. This is not simply a home; it is an experience from the moment you turn in from the road.
Interiors Worthy of the Address
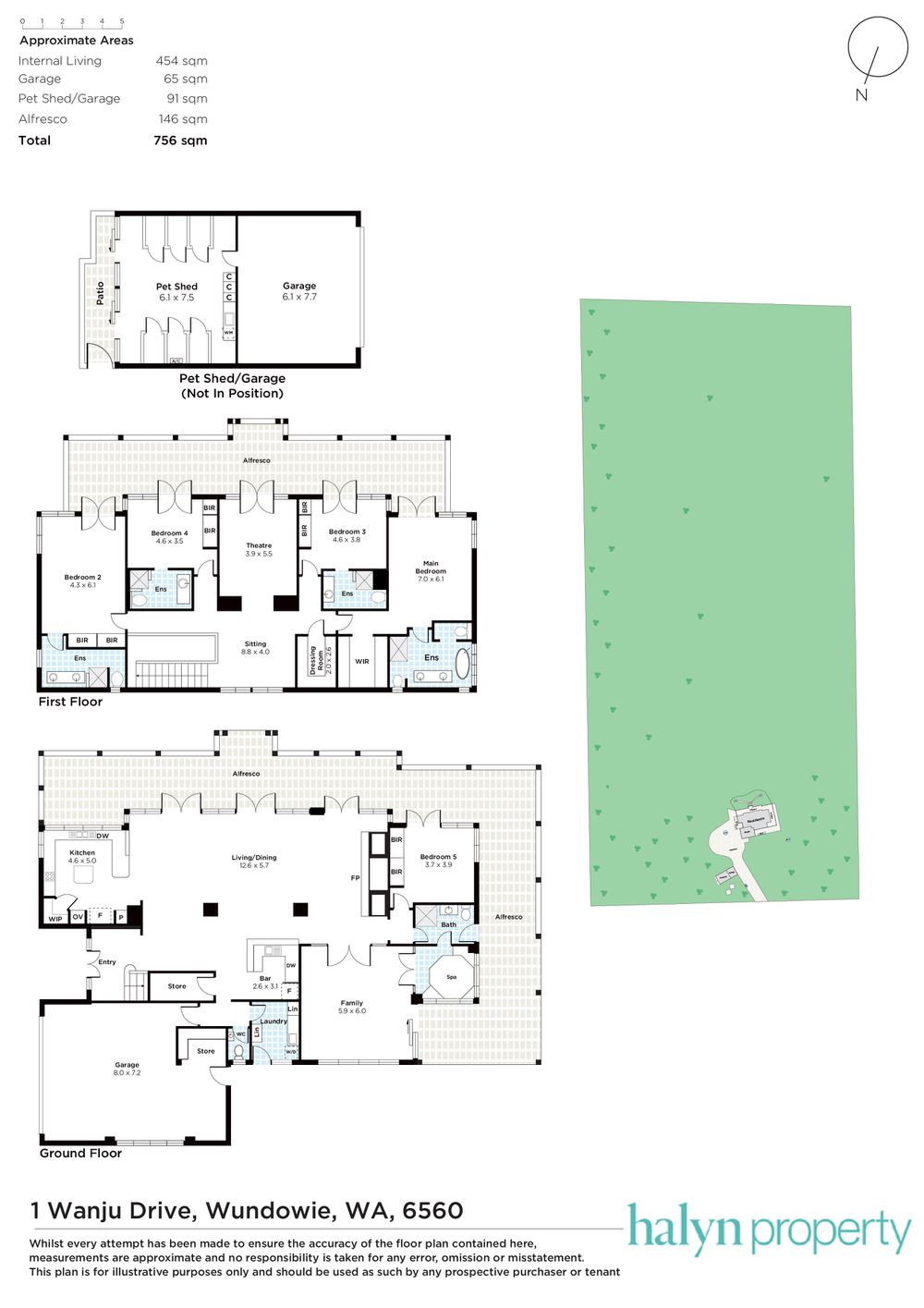
Spanning an impressive 454 square metres of internal living space, with an additional 384 square metres across the veranda, balcony, and three-car garage (totalling 838 square metres under roof), every detail of this residence has been considered with both elegance and liveability in mind. At the heart of the home, an expansive open-plan kitchen, living, and dining area flows effortlessly for entertaining at any scale. The living room commands attention with its majestic limestone fireplace, a striking centrepiece that lends warmth to winter evenings. For those who appreciate the finer pleasures, a fully appointed private cocktail bar stands ready to serve. Three generous living areas across both floors offer ample room for both solitude and sociability, while the custom Jarrah staircase, a nod to Western Australia's finest timber craft, connects the two levels with quiet drama beneath soaring vaulted ceilings.
Accommodation
Five generously proportioned double bedrooms, each with its own ensuite bathroom, ensure that guests, family, or future clientele are accommodated with complete privacy and comfort. The four upper-level bedrooms and bathrooms have been thoughtfully renovated in a Modern French Classic design, a refined aesthetic characterised by ornate cornices, stone-floored bathrooms, grandiose fitted mirrors, bespoke white timber shutters, signature fabric foam wall claddings, and the harmonious pairing of Modern French architraves with high skirting boards. Stone wall lights, warm-toned fittings, and statement chandeliers complete the atmosphere of understated luxury throughout.
Outlook & Aspect
The views from this estate are nothing short of spectacular, and thanks to its elevated rural setting, they are guaranteed to remain so. No future development will ever obstruct the
sweeping, picturesque views that greet you each morning.
Infrastructure & Sustainability
This Manor has been equipped for modern living without compromise:
• Climate control: Two brand new Fujitsu ducted reverse cycle air conditioning systems
with individual zone control for every room, one per floor
• Hot water: Two brand new Rinnai hot water systems, one per floor
• Energy: 10-kilowatt solar panel system
• Water: Bore water supply and a concrete water reservoir, while still a scheme water
connection remains available for added convenience and peace of mind
• Construction: Double brick with concrete slab foundation; built for longevity
• Kitchen appliances: Refrigerator, dishwasher, electric wall oven, electric hotplate, and
microwave
• Storage & outbuildings: Three-car garage and garden shed
• Pet accommodation: A dedicated dog hotel parlour, thoughtfully designed for the
animal-loving household or hospitality operator
Land & Location
The estate sits upon 8.5 hectares of fertile land, offering the rare and valuable possibility of
subdivision into up to 6 separate lots, a significant opportunity for the sharp investor.
Despite its sense of seclusion, the property is supremely well-connected:
• Approximately 5 minutes to Great Eastern Highway
• Approximately 12 minutes to Toodyay Road
• Approximately 30 minutes to the world-renowned Swan Valley, Western Australia
Properties of this calibre rarely present themselves. Private inspections are available for qualified buyers.
We invite you to experience this estate for yourself!
Contact the Selling Director Brian Lynn on 0407 932 583 to secure this once-in-a-generation estate!
Disclaimer: The particulars of this listing have been prepared for advertising and marketing purposes only. We have made every effort to ensure the information is reliable and accurate, however, clients must carry out their own independent due diligence to ensure the information provided is correct and meets their expectations to proceed with making an offer.



































