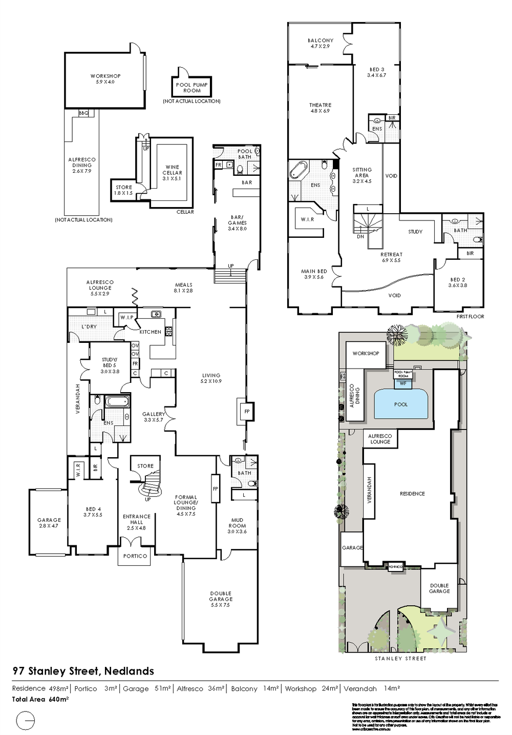
This exquisite 4 bed plus study (or 5 bed) home, designed by Studio Di Architettura, offers an unparalleled blend of luxury, comfort, and style, perfect for families seeking space and sophistication in one of Nedlands most desirable blue-chip locations.
Set on an elevated and fully fenced 1012 sqm block, the home offers both privacy and security. From the moment you enter through the 19th Century French antique front doors, you'll be impressed with the quality, space and size of this stunning residence. The home ensures convenience for family and guests alike and features both formal and informal areas that provide excellent separation of adult and children's zones whist still maintaining connectivity and being homely.
The features keep coming outside, with a resort style alfresco area including pool, BBQ and pizza oven which is serviced by a separate pool toilet and shower facility, low maintenance gardens and a powered workshop.
For the wine lover, there is also a separate fully fitted out wine cellar under the house.
Out front, the home offers a double garage with direct access to the home through the mud room with a full bathroom (and built in Murphy Bed for when you need an extra guest room) plus a second single garage with dual access providing secure parking and additional storage options.
What you need to know:
• Land & House: Elevated 1012sqm prime block with 640sqm (approx.) underroof
• Internal: 4/5 Bedrooms (3 with ensuite bathrooms plus a 4th bathroom servicing bed 2), formal lounge and dining, gourmet kitchen with updated Miele appliances, main living and family means area, mud room with full ensuite bathroom and hidden Murphy Bed, study/5th bedroom, bar/games room with pool table, home theatre, multiple sitting/retreat areas and separate wine cellar
• External: Resort style alfresco area including pool, BBQ and pizza oven, separate pool toilet and shower facility, powered workshop, low maintenance gardens, 3 car garage.
• Security: CCTV cameras (internal and external) with alarm system, automated vehicle gates and remotely activated pedestrian gate with keypad
• Heating and Cooling: 2 x 8hp Daikin inverter (ducted) air conditioning system, supplementary Daikin cassette split system in rear meals area, 2 x Jet Master gas fireplaces- Extras: 6.5 KW solar system with inverter (battery ready), Hills Hub smart wiring throughout, (Bore) reticulated gardens and garden beds, automated shade awning on western face glazing
• Location: Everything you could possibly need is easily accessible including shopping, restaurants, cafes, local primary schools, Christchurch, MLC and UWA. Nedlands Golf Club (150m), tennis courts (600m), yacht clubs and a myriad of other sporting facilities are all at your fingertips
With a substantial 498 sqm (approx.) of living space, this residence is designed for both entertaining and everyday living and is now ready to welcome a new family into its fold.
Call Mark Hales to arrange your viewing and to discuss how you can make this home yours today.
Disclaimer: The particulars of this listing have been prepared for advertising and marketing purposes only. We have made every effort to ensure the information is reliable and accurate, however, clients must carry out their own independent due diligence to ensure the information provided is correct and meets their expectations to proceed with making an offer.
Features
- Ducted Heating
- Gas Heating
- Open Fireplace
- Balcony
- Deck
- Outdoor Entertainment Area
- Swimming Pool - In Ground
- Courtyard
- Fully Fenced
- Outside Spa
- Alarm System
- Built-in Wardrobes
- Intercom
- Rumpus Room
- Dishwasher
- Study


































