Multiple competitive offers were received! If you or someone you know have been thinking about selling, please contact the Halyn Property team for a swift & smooth sale.
Offering stunning River views, unit 45, in the stylish Saffron Apartment Complex, is a spacious, well-appointed and perfectly configured 3-bedroom, 2-bathroom apartment that will make a perfect City pad for the owner occupier or excellent, low maintenance investment.
Situated in the thriving East Perth area, this apartment offers the best of city living with easy access to cafes, restaurants, parks, and public transport. Enjoy the vibrant lifestyle of inner-city living while being just moments away from the beautiful Swan River and the bustling Perth CBD.
What you need to know:
- 5th floor location and south facing
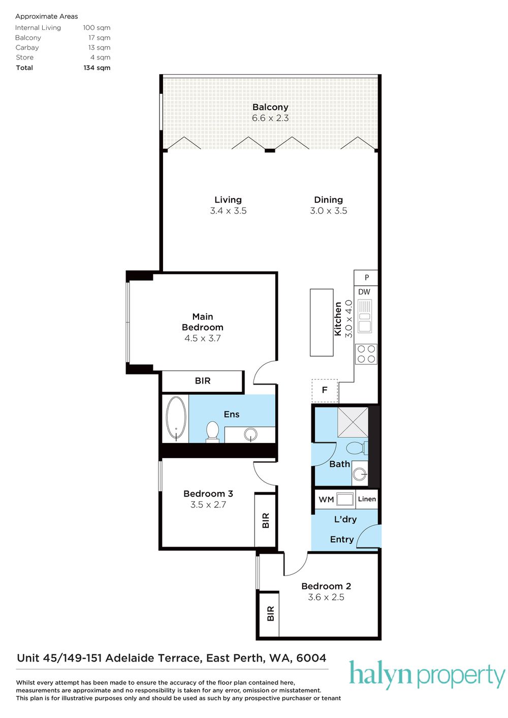
- 100sqm of spacious and immaculate internal living
- Total lot size 134sqm
- Generous 17sqm balcony leading off living & dining with direct river views
- Built in robes to all bedrooms
- Vacant and ready to occupy
- Secure undercover parking & storeroom
- Kitchen with stone bench top, quality appliances & glass splash back
- Resort style facilities including pool, gymnasium & sauna
- Quality fixtures and fittings throughout
- Intercom security system
- Reverse cycle A/C
- Direct access to the heart of the city from your doorstep
- A great cafe located at the base of the complex
- Outgoings: Water Rates - $1,429.44 pa Council Rates - $2,018.52 pa Strata Levies $1,819.80 pq
Don't miss out on this fantastic opportunity to own a piece of urban paradise! Contact us today to arrange a private viewing and experience the allure of this stunning apartment for yourself.
Disclaimer: The particulars of this listing have been prepared for advertising and marketing purposes only. We have made every effort to ensure the information is reliable and accurate, however, clients must carry out their own independent due diligence to ensure the information provided is correct and meets their expectations to proceed with making an offer.
Features
- Air Conditioning
- Balcony
- Secure Parking
- Built-in Wardrobes
- Gym
- Intercom
- Dishwasher
- Floorboards
