On offer for the first time since being developed 20 years ago, is this city fringe-positioned, recently renovated & modernised, beautifully presented boutique 2-bedroom, 1-bathroom, 1-secure car bay apartment.
Built in 2004, this mixed-use boutique complex, comprising of only 12 apartments, 5 commercial units. Residents living here will have the exclusive residents-only use of the 16-metre lap pool & outdoor BBQ, with an abundance of cafe's, parks, and shops all within walking distance.
Features we want you to know!
- Move straight in with the internal walls freshly painted & Tasmanian Oak floorboards recently refinished
- Brand-new stylish & modern kitchen and appliances, with gas cooking, and ample storage options
- Split-system reverse-cycle air conditioning (6kw) to the living area, sufficient to heat/cool the entire apartment
- Solar hot water system servicing the apartment
- Access your front door stairwell entry from behind a secure garage gate with CCTV
- Sloped-ceiling above the study nook providing you with an abundance of brightness from the skylight
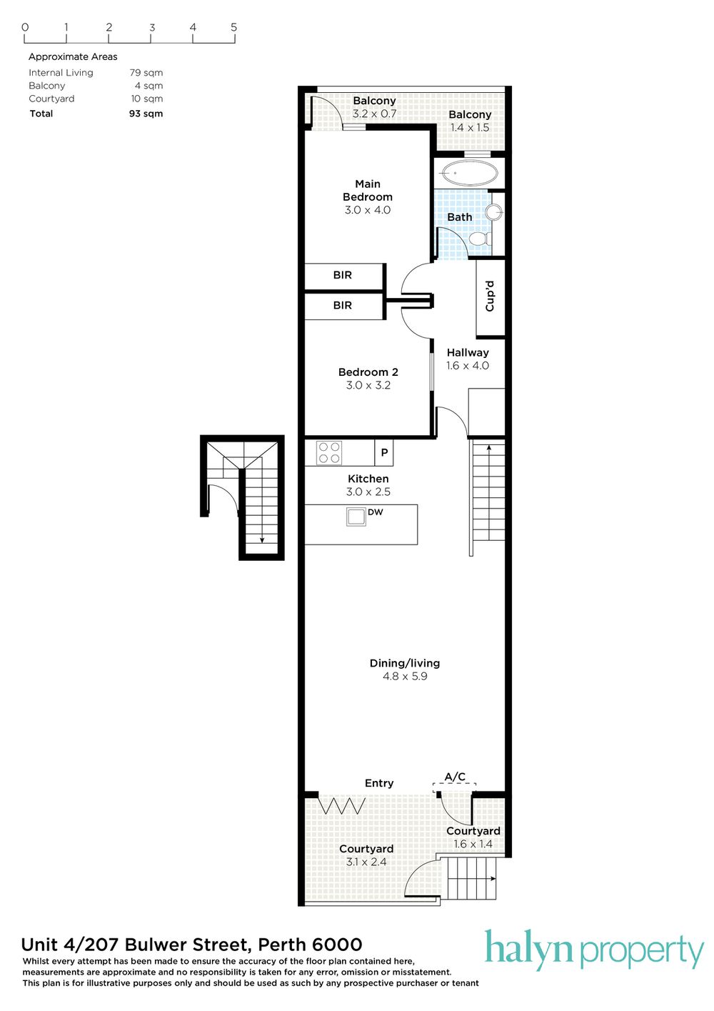
- 114sqm of total strata lot size, with 79sqm of just internal living space!
- 5sqm North-facing balcony, 10sqm courtyard overlooking the 16m lap pool & BBQ, and a 4sqm storeroom located under your entry stairs
- Only 17 units in total in this boutique, mixed-use complex
- Currently vacant, beautifully staged & waiting for its new residents to move right in!
Location:
Everything you require and desire is all within walking distance. The lifestyle and convenience are sure to impress all buyers!
- Perth Underground Train Station (Perth CBD) 1.6km
- Hyde Park 170m
- Northbridge Library 1.0km
- Golden Choice Fresh Market 400m
- Beatty Park 1.4km
- Kings Park 3.6km
This apartment is the ideal investment opportunity, right on the doorstep of the highly sought-after location of Perth.
Our experienced Asset Management team envisage this property can expect approximately $625 - $700 per week (unfurnished) in current market rental returns. For astute investors interested in purchasing this property, please feel free to reach out to discuss the potential investment return for you, with our award-winning Asset Management team.
Council Rates: $1,693.04 per annum (approx.)
Water Rates: $1,249.54 per annum (approx.)
Strata Levies: $1,023.97 per quarter (approx.) inclusive of Reserve Fund
Please contact the Selling Agents - Blair Becker on 0402 425 229 or Brian Lynn on 0407 932 583 to make this boutique home yours today!
Disclaimer: The particulars of this listing have been prepared for advertising and marketing purposes only. We have made every effort to ensure the information is reliable and accurate, however, clients must carry out their own independent due diligence to ensure the information provided is correct and meets their expectations to proceed with making an offer.



































