- We achieved Multiple Offers throughout the Auction Campaign, along with;
- 10 Registered Bidders Prior to Auction,
- 17 Genuine and Competitive Bids at Auction,
- 3 Formal Offers Presented Post Auction,
- And a Successful Campaign making this Property is Now Sold!
We have a High Number of Ready-to-Purchase Buyers that are actively looking in this area. If you or someone you know is considering Selling, please contact our Sales Director Brian Lynn on 0407 932 583 to discuss the Best Sales Approach in the Current Market.
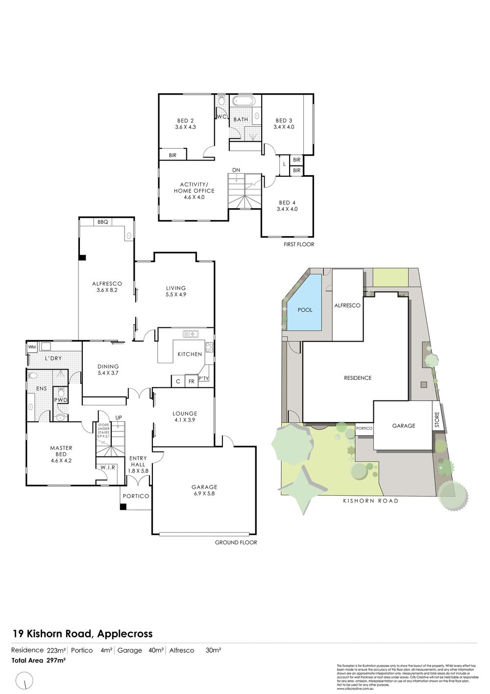
Welcome to 19 Kishorn Road, Applecross. This stunning, street front 4-bedroom, 2-bathroom house is the perfect family home. Situated on a generous 467 sqm land area, this property offers ample space both indoors and outdoors.
Constructed circa 2005, this house boasts modern architecture and design, making it a true gem in the neighborhood. As you step inside, you'll be greeted by a double door entry leading to your kitchen, living and dining. With direct access to your private alfresco and plunge pool you will love your new-found sanctuary!
The bedrooms are all generously sized, providing comfort and privacy for the whole family. The master bedroom comes complete with an ensuite bathroom, offering a retreat-like experience. The second bathroom is conveniently located to cater to the needs of the other bedrooms.
With a double garage, there's plenty of space for your vehicles and additional storage. The outdoor area is perfect for entertaining, with potential for a lovely garden and a sheltered patio area. Enjoy the tranquility of the surrounding trees and take in the beauty of nature.
Located in a sought-after corner of Applecross, this property offers easy access to the city and all its amenities. Whether you're looking to explore the vibrant city life or relax in the nearby parks, this location has it all.
Property Features we want you to know:
- Open plan living, family, dining, kitchen area, overlooking the outdoor areas perfect for entertainment.
- Indoor theatre room.
- Spacious master bedroom and ensuite with a walk-in wardrobe on the ground floor of this two-storey home.
- 3 good sized bedrooms on the upper level with their own built-in wardrobes, and access to the upstairs landing area and large open study area.
- Excellent bedroom and living area separation.
Don't miss the opportunity to make this house your home. Contact Selling Agent Brian Lynn for further details.
Property Rates:
Council Rates: $3,223.51 per annum (approx.)
Water Rates: $1,848.51 per annum (approx.)























