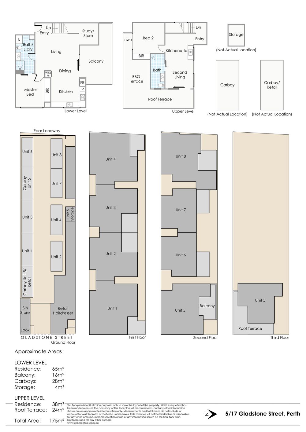
Spanning the top two floors of a quality modern residential-commercial complex that sits just one street back from sporting events and concerts at HBF Park and is nestled right between the heart of our vibrant Perth CBD and our picturesque Swan River, this impressive 2 bedroom 2 bathroom apartment truly does have the "wow factor" about it - and even boasts an open roof and barbecue terrace where the stunning city-skyline vista will absolutely take your breath away.
Also upstairs is a carpeted second bedroom with full-height mirrored built-in wardrobes, as well as an adjacent carpeted second living area, where a built-in stone kitchenette plays host to a sink, storage and more. The latter enjoys direct access out to the terrace, as well as a door opening into a stylish main bathroom with a shower, stone vanity, toilet, heat lamps and mirrored storage cabinetry.
Downstairs, the welcoming open-plan living and dining area is also carpeted for comfort and incorporates a functional and tiled L-shaped kitchen into its spacious design - sleek stone bench tops, tiled splashbacks, double sinks, stainless-steel Omega dishwasher, electric range-hood, hotplate and oven appliances, microwave nook and all. There is also a study/storage nook at the bottom of the staircase, whilst the living room extends out to a delightful balcony, encouraging further outdoor entertaining.
A large semi-ensuite bathroom-come-laundry features a shower in the corner, a stone vanity, a toilet and corner linen cupboard, as well as heat lamps. It also runs off a commodious and carpeted master suite, complementing full-height mirrored built-in robes. At ground level, you will find two allocated car bays, as well as a handy storeroom that has been allocated to the apartment.
This boutique group of properties is conveniently located only footsteps away from bus stops, both the Claisebrook and East Perth Train Stations, the freeway, the East Perth and Mount Lawley café strips, the buzzing cultural hub that is Northbridge, our world-class Optus Stadium at Burswood, the Crown Towers, casino and entertainment complex next door and everything that is great about our cosmopolitan city centre. It's all about a lock-up-and-leave low-maintenance lifestyle here - and the views aren't half-bad, either!
Other features include, but are not limited to:
• Split-system air-conditioning to the downstairs and upstairs living areas
• Wine fridge off the main lower-level living/dining area
• Quality window treatments
• Double Storey Apartment with two balconies spanning over 170sqm total lot size
• Shadow-line ceiling cornices upstairs, feature skirting boards & down lights
• External hot-water unit, out on the top-floor terrace
• Video & audio intercom, and CCTV security cameras
• Vacant and ready to go!
• Two secure ground-floor car bays (one for retail use during certain periods)
**Please note: The 2nd car bay is for the exclusive use of lot 5 (excluding Monday to Friday 8.30am to 5pm when it is for the use of the hair salon).
Council Rates: $1,803.42 per annum (approx.)
Water Rates: $1,285.59 per annum (approx.)
Strata Levies: $1,149.152 per quarter (approx.)
Contact Brian Lynn on 0407 932 583 to make this dream home yours today!












